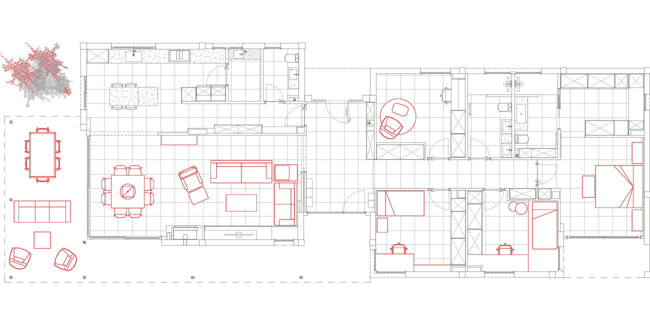
L’obra nova és un full en blanc que permet un treball conjunt entre arquitectura i interiorisme. En aquest projecte, la Tere tenia clar que volia una casa d’una sola planta, amb les zones de dia i de nit clarament diferenciades.
El disseny respon a una manera de viure pràctica, funcional i connectada amb l’entorn.


















