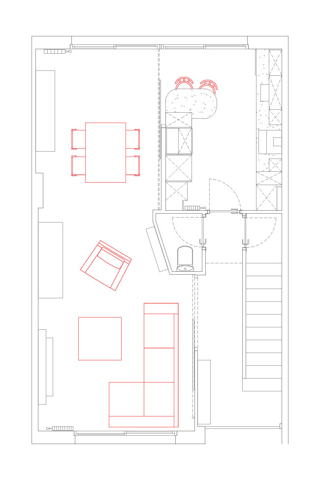
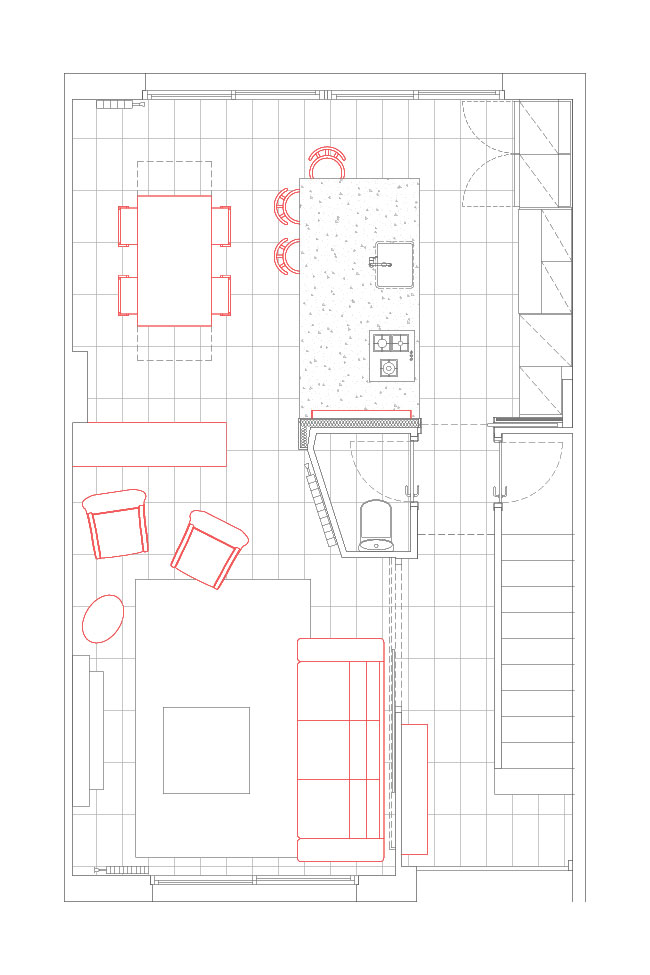
L’objectiu principal era obrir la cuina al menjador per guanyar lluminositat, practicitat i una estètica atemporal. El repte va ser crear un espai de trobada que convidés a la conversa i reforcés la passió per la cuina.
Paral·lelament, vam transformar la suite en un espai de relaxació i intimitat, substituint la banyera per un plat de dutxa funcional i augmentant la capacitat d’emmagatzematge tant al bany com a l’habitació.



















